Kantoren & magazijn

Terbiest 90

3800 Sint-Truiden

€ 951.530
  • 788 m²

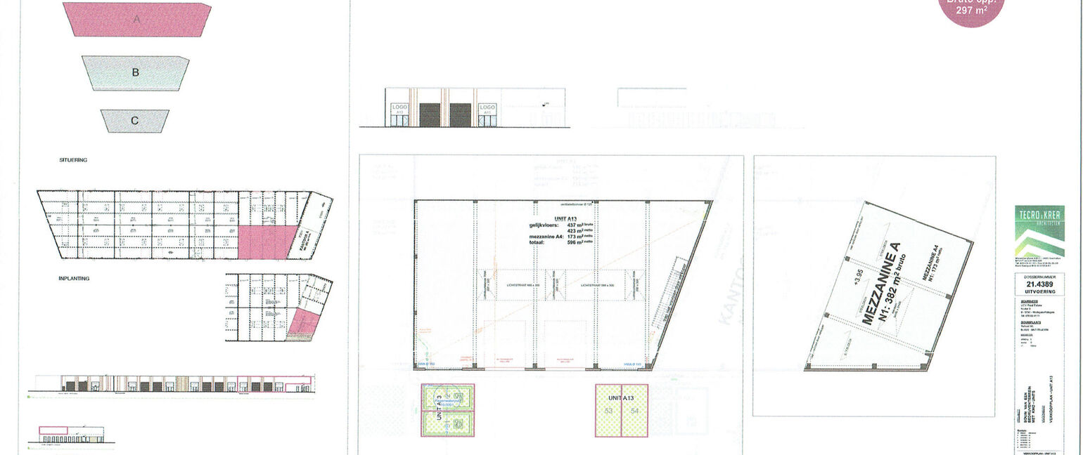
KANTOORRUIMTE 178M² MET AANSLUITEND EEN KMO-UNIT MET EEN OPPERVLAKTE VAN 437M² EN EEN MEZZANINE VAN 173M² EN 7 PARKEERPLAATSEN GELEGEN IN HET NIEUWE BEDRIJVENPARK TER BIEST

Nieuw bedrijvenpark "Ter Biest", bestaande uit 27 KMO-units, 2 kantoorruimtes, een conciërgewoning en verschillende parkeerplaatsen.

Voor meer info en de technische gegevens kan u de brochures hier onderaan deze pagina, onder DOWLOADS, bekijken!

KENMERKEN KANTOOR K A0.2 EN UNIT A.13:
- bruto oppervlakte kantoor: 178m²
- gelegen op een hoek langs de straat dus goede visibiliteit!
- bruto oppervlakte hal: 437m² en mezzanine 173m² boven het kantoor
- 7 aangrenzende parkeerplaatsen
- 2 sectionaalpoorten 4.00x4.50m
- 2 aparte toegangsdeuren
- lichtstraat
- 3 lichtdoorlatende RWA (rook- en warmteafvoer) in het dak (+€7.125/RWA)
- minimaal 6m vrije hoogte onder de liggers
- geen tussenkolommen
- draagkracht vloer: 3.000 kg/m²
- verkoop in CASCO staat
- Bestuursmaatregelen in het maatregelenregister: nee

VERPLICHTE SUPPLEMENTEN:
- basisakte en opmetingskost: €2.000 per unit en kantoor
- water & elektriciteit: €3.800 per unit en kantoor
- brandtechnische voorziening: €3.000 per unit en kantoor
- verluchtingsroosten en dakdoorvoer: €3.500 éénmaal
- rookluiken (brandklasse C): €7.125 per RWA (3-maal)

--> dus de totaalprijs bedraagt €994.005 zonder kosten

OPTIONELE SUPPLEMENTEN:
- laadpaal met 2 laadpunten: €7.925/laadpaal

Vermelde prijzen zijn exclusief 21% BTW op de volledige koopprijs, aktekosten en erelonen notaris, aansluiting nutsvoorzieningen, onderhoud park (via VME) en aanvullen EPB-aangifte en PID-dossier.

Deze units worden ook te huur aangeboden.

Huidige beschikbaarheid (bruto oppervlaktes):
ALLEEN NOG IN BLOK C - DE REST VAN HET BEDRIJVENPARK IS VOLLEDIG UITVERKOCHT:
- Conciërgewoning 133m² + terras 82m² + unit C.04 met een oppervlakte van 214m²: €610.800 zonder kosten en supplementen

N3 vastgoed


Luikersteenweg 395, 3800 Sint-Truiden

T: +32 11 75 57 30


Contacteer ons voor meer info
  • Delen mag altijd:
  • Print

Meer in detail

Contacteer ons

Wenst u meer informatie over deze eigendom?

U moet een aanspreking selecteren.
U moet uw voornaam invullen.
U moet uw naam invullen.
U moet uw e-mailadres invullen.
U moet uw telefoon invullen.
U moet een vraag invullen.
U moet akkoord gaan met onze algemene voorwaarden.