Kmo-terrein

3650 Dilsen-Stokkem

€ 509.700
  • 6796 m²

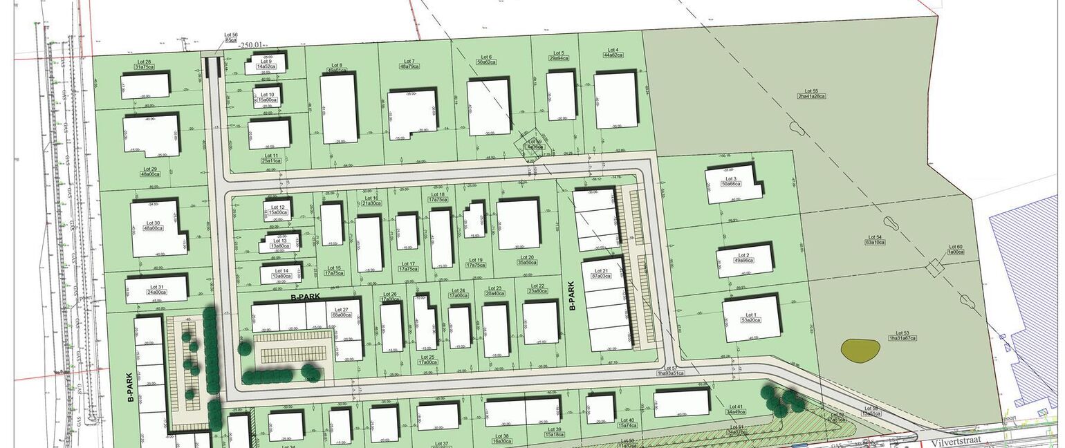
LOT 26 VAN 67A96CA GELEGEN IN DE NIEUWE KMO-ZONE TE LANKLAAR.

---
Deze nieuwe KMO-zone is gelgen op het industrieterrein te Lanklaar. In het verlengde van de Vilvertstraat zijn er nieuwe wegen aangelegd voor de ontsluiting van deze site.

DESIGN & BUILD:
U kan ervoor opteren om een perceel grond te kopen en zelf in te staan voor de opvolging van het bouwproces.

Echter is het ook mogelijk om een gebouw op maat van uw wensen te laten ontwikkelen. U wordt in dat geval volledig ontzorgd en het hele bouwproces wordt zo van u overgenomen. Uiteraard alles in nauw overleg met u als opdrachtgever. U koopt in dat geval dus een perceel grond én een gebouw dat op maat van uw wensen en behoeften wordt gebouwd.

BOUWVOORRSCHRIFTEN:
Deze site is gelegen in het GRUP "Bedrijventerrein Lanklaar" in de zone "lokaal bedrijvigheid".

Volgende hoofdactiviteiten zijn toegelaten:
- productie, verwerking en bewerking van goederen;
- onderzoeks- en ontwikkelingsactiviteiten;
- dienstverlenende bedrijven, dit zijn bedrijven die diensten verlenen aan andere bedrijven;
- productie en distributie van energie;
- verder zijn kantoren en toonzalen gekoppeld aan de toegelaten hoofdactiviteit toegelaten (zuivere kleinhandel is evenwel niet toegalaten). Er kan één woongelegenheid per bedrijf (max. 200m² vloeroppervlakte) voorzien worden.

Inrichting:
- bouwhoogte: max. 15m
- afstand zijdelingse perceelsgrens: 5m en mits gunstig advies brandweer
- bouwen op perceelsgrens of bouwen op minder dan 5m afstand van de perceelsgrens mist akkoord aanpalende eigenaar en gusntig advies brandweer

De volledige voorschriften van het GRUP zijn op aanvraag te bekomen.

Prijzen:

De vermelde prijzen zijn exclusief BTW (op aandeel wegenis), verkooprechten, aktekosten, ereloon notaris, opzoekingskosten en plan- en metingskosten. Contacteer ons voor een volledig prijsoverzicht.

Bekijkt u deze advertentie via een aanverwante vastgoedsite, surf dan zeker naar onze website www.N78vastgoed.be voor een uitgebreide beschrijving en plannen.

Meer info: +32 (0)89 86 18 88 of info@N78vastgoed.be

N78 vastgoed


Rijksweg 235, 3650 Dilsen-Stokkem

T: +32 89 86 18 88


Contacteer ons voor meer info
  • Delen mag altijd:
  • Print

Meer in detail

Contacteer ons

Wenst u meer informatie over deze eigendom?

U moet een aanspreking selecteren.
U moet uw voornaam invullen.
U moet uw naam invullen.
U moet uw e-mailadres invullen.
U moet uw telefoon invullen.
U moet een vraag invullen.
U moet akkoord gaan met onze algemene voorwaarden.