Huis

Bergstraat 51

3770 Riemst

€ 280.000
  • 3

  • 150 m²

  • 145 m²

VOLLEDIG GERENOVEERDE EN ENERGIEZUINIGE WONING MET 3/4 SLAAPKAMERS EN VERWARMING VIA EEN WARMTEPOMP GELEGEN TE VAL-MEER OP 1A 45CA

TROEVEN:

- de woning is volledig gestript geworden en daarna helemaal gerenoveerd: nieuw dak, geïsoleerde buitenmuren, nieuwe tussenvloeren, nieuwe ramen, alle leidingen en afvoeren, een warmtepomp, vloerverwarming gelijkvloers, radiatoren verdieping, nieuwe keuken en badkamer, bevloering, ...
- EPC label A - 86 kWh/m² --> zie het EPC-attest hier onderaan onder DOWNLOADS
- 3 bestaande slaapkamers met de mogelijkheid om een 4de kamer te maken op de zolder die bereikbaar is via een vaste trap
- conform keuringsattest van de elektrische installatie
- ventilatiesysteem type D met warmterecuperatie
- de doorvaart naar de achtergelegen woning hoort er ook bij --> zie het kadasterplan hieronder onder DOWNLOADS
- P-score C en G-score B
- Bestuursmaatregelen in het maatregelenregister: nee

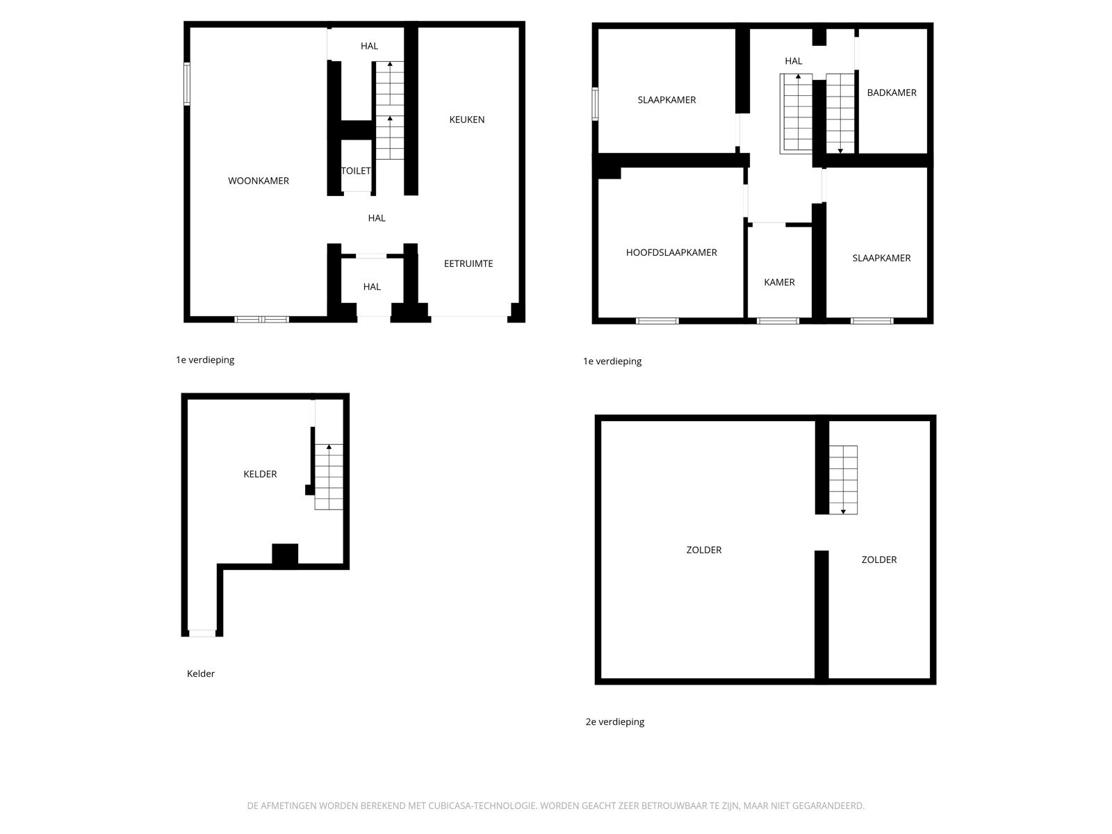
VERDIEPING -01:
- Kelder
(14m²): 3.70x3.70m, 1.80m hoogte. Tegelvloer.

GELIJKVLOERS - overal vloerverwarming en keramische tegelvloer:

- Centrale inkomhal (1.60m²): 1.35x1.20m.
- Leefruimte (22.50m²): 6.60x3.40m voorzien van inbouwspots.
- Keuken met eetplaats (18m²): 7.00x2.60m, geïnstalleerd met boven- en onderkasten, een granieten werkblad, een ingebouwde koelkast en diepvries, zowel een microgolfoven als een warmeluchtoven, keramische kookplaat, dampkap met filter en een spoelbak. Ruimte nog voorzien van een dubbel openzwaaiende buitendeur en ruimte voor een tafel te plaatsen.
- Berging/wasplaats (3m²): 2.25x1.50m met aansluiting wasmachine. Hier staat ook de warmtepomp en is de toegang tot de kelder.
- Apart gastentoilet (0.85m²): 1.40x0.60m, voorzien van een hangtoilet en handenwasser.

VERDIEPING +01 - volledig vernieuwde houten tussenvloer en overal laminaatbevloering:
- Nachthal/overloop
(6.50m²): 4.35x1.50m met een vaste trap naar de zolderverdieping.
- Badkamer (5m²): 2.80x1.90m, uitgerust met een inloopdouche, hangtoilet en badkamermeubel met dubbele lavabo.
- Slaapkamer 1
(14.50m²): 3.80x3.80m, voorzien van een radiator.
- Slaapkamer 2
(10m²): 3.70x2.70m, voorzien van een radiator.
- Slaapkamer 3 (10m²): 3.80x2.60m, voorzien van een radiator.
- Berging/dressing (3m²): 2.25x1.40m.

VERDIEPING +02 - volledig vernieuwde houten tussenvloer:
- Zolder (51m²): 8.50x6.00m, bereikbaar via een vaste trap en afgewerkt. Volledig nieuw dak met 24cm isolatie. Hier hangt ook het ventilatiesysteem type D met warmterecuperatie. Laminaatvloer.

EXTERIEUR:

- Doorgang: de doorvaart voor de voordeur naar de achtergelegen woning hoort ook bij deze eigendom.

N3 vastgoed


Luikersteenweg 395, 3800 Sint-Truiden

T: +32 11 75 57 30


Contacteer ons voor meer info
  • Delen mag altijd:
  • Print

Meer in detail

Contacteer ons

Wenst u meer informatie over deze eigendom?

U moet een aanspreking selecteren.
U moet uw voornaam invullen.
U moet uw naam invullen.
U moet uw e-mailadres invullen.
U moet uw telefoon invullen.
U moet een vraag invullen.
U moet akkoord gaan met onze algemene voorwaarden.